烘干机的烟气温度、含尘浓度和含湿量等波动范围大,特别是烟气露点温度高,一台烘干机往往烘干多种物料,粉尘性质变化频繁,烟气具有腐蚀性,再加上烘干机时开时停,这些都给烘干机的除尘带来极大的困难,烘干机除尘已成为水泥厂除尘的难题,目前在烘干机上常用的除尘器有高压静电除尘器和玻纤反吹风袋式除尘器,这两类除尘器的体积大、投资高,迫切需要研制出一种新型、实用、可靠的烘干机除尘设备。

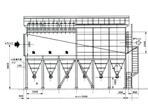
??HPD型烘干机专用行喷脉冲袋式除尘器是我公司开发研制的新型脉冲袋式除尘器,专用于烘干机的粉尘治理。它吸收了气箱脉冲和管式喷吹除尘器的清灰技术,不但具备气箱脉冲除尘器清灰能力强、除尘效率高、排放浓度低等特点,还具有占地面积小、单位面积处理风量大等优点,该除尘器采用了大量的新技术及高品质的零部件,其适应性、使用可靠性及自动化程度大大提高,可保证长期随主机设备运行,除尘器出口排放浓度低于**规定的排放浓度,是烘干机粉尘治理的**设备。

??HPD型烘干机除尘器性能特点
??1、采用脉冲喷吹清灰技术,清灰能力强,除尘效率高,排放浓度低,漏风系数小,能耗低,钢耗量少,占地面积小,运行稳定可靠,经济效益好。适用于电力、建材、冶金、化工等行业的烟气处理。
更多>本企业其它产品



